INSTITUCIONAL | FACULTAD DE ENFERMERÍA UNAL

Modelo BIM de alta fidelidad para un edificio universitario de geometría no ortogonal, desarrollado como ejercicio académico de coordinación avanzada. El objetivo no es “contar la arquitectura”, sino demostrar capacidad para traducir intención de diseño y complejidad constructiva en un sistema paramétrico coordinable: control geométrico, consistencia de datos, detección de interferencias y generación de documentación 2D desde un único origen digital.​​​​​​​
CONCEPTO ARQUITECTÓNICO
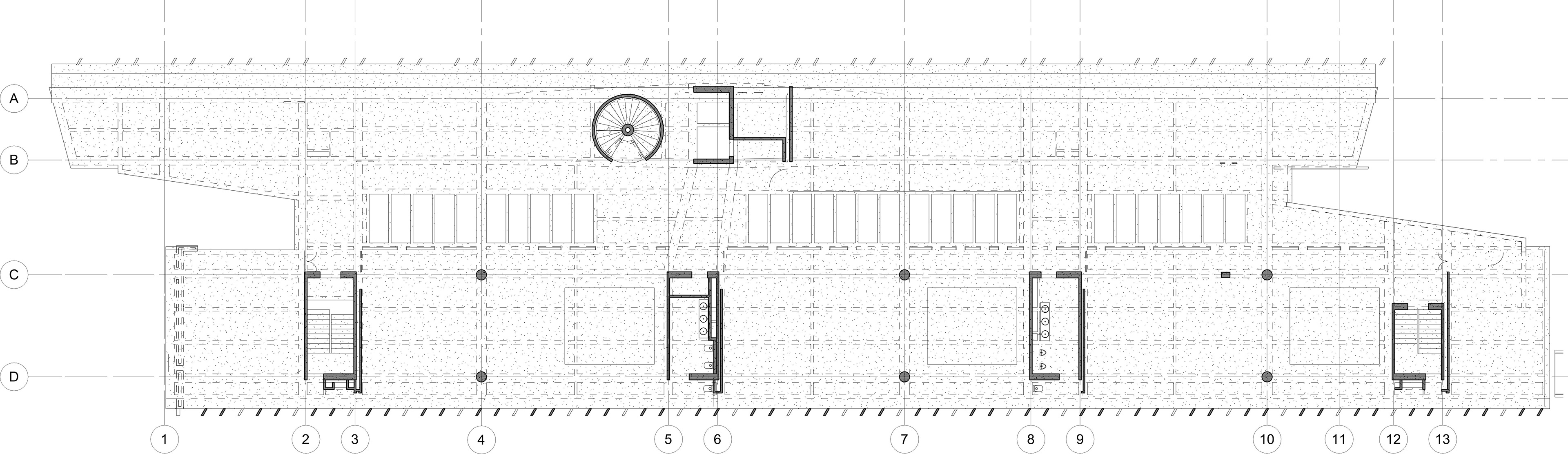
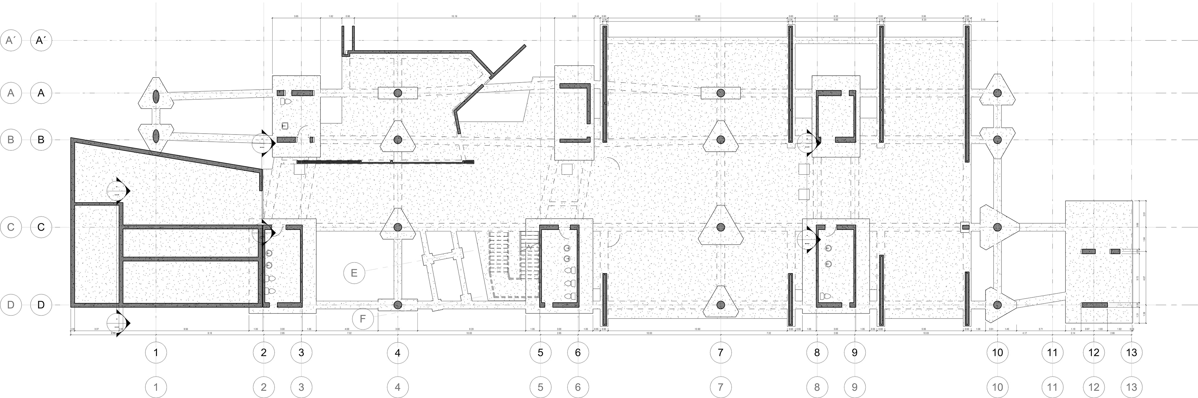
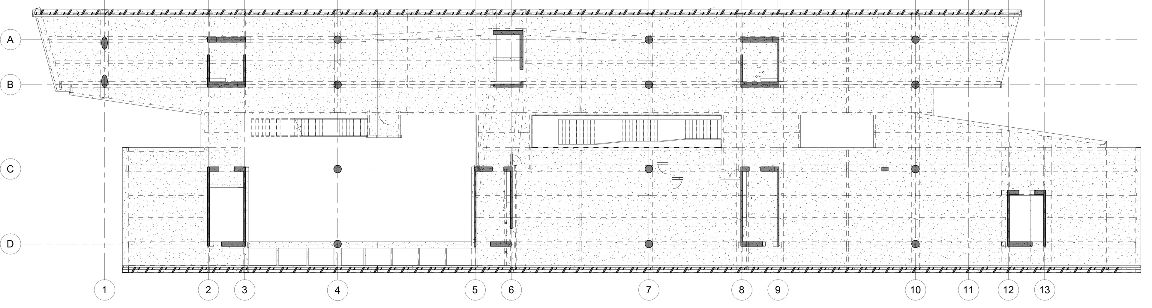
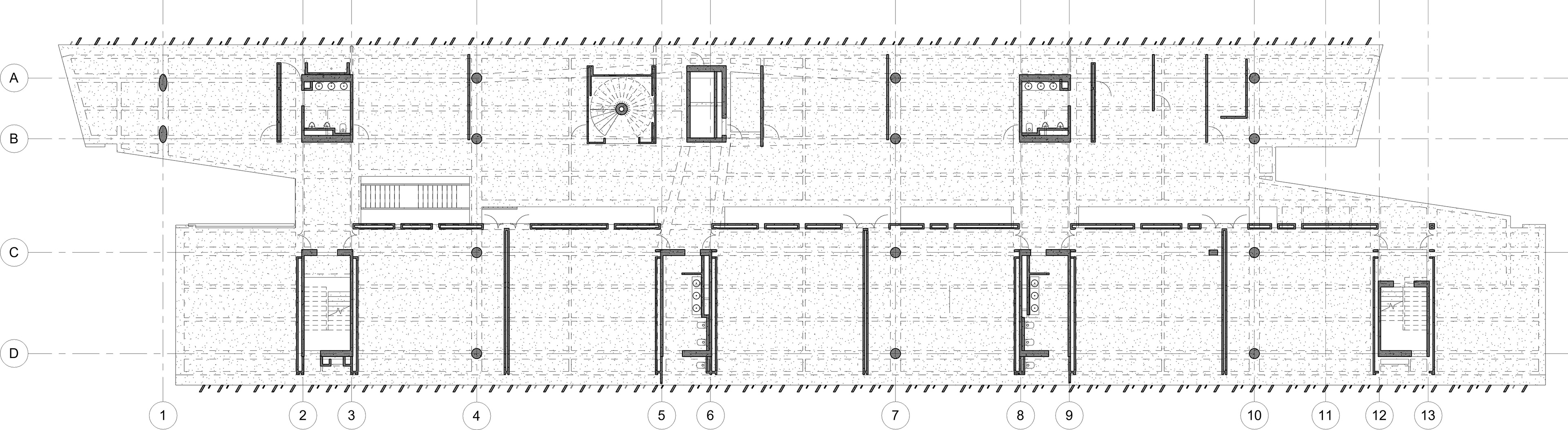
El proyecto se concibe para mantener relaciones visuales con el campus, elevando el volumen y liberando el plano de acceso; la inclinación de la losa del segundo nivel intensifica esa condición espacial. En BIM, esto se convierte en un problema de referencia: planos inclinados, encuentros no ortogonales y transiciones que exigen una estrategia de niveles, ejes y “work planes” robusta para evitar acumulación de errores y asegurar lecturas coherentes en planta, corte y fachada.
ESTRATEGIA ESPACIAL
La lógica espacial —vacíos, permeabilidad y continuidad de recorridos— se traduce en un esquema de “model navigation”: vistas por disciplina, filtros por paquetes, y una jerarquía de submodelos que permite aislar decisiones. El foco está en preservar trazabilidad entre espacios (Rooms/Areas), elementos anfitriones (Levels/Grids) y envolvente, de modo que el modelo soporte auditoría: qué cambia, por qué cambia y cómo impacta cuantificaciones, coordinación y planos.
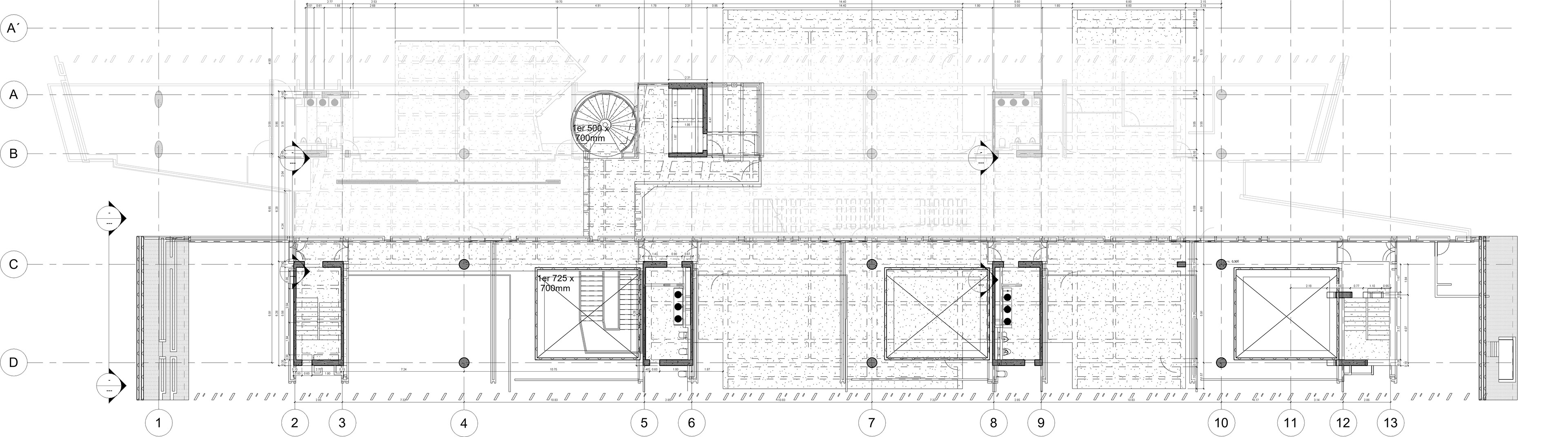
SISTEMA ESTRUCTURAL
Estructura en concreto como sistema dominante y expresivo, con piezas que demandan control de variación y tolerancias: losas con inclinación, vigas o elementos con cambios de sección y encuentros complejos en bordes y apoyos. La estrategia BIM prioriza: familias paramétricas cuando existe repetición, modelado por partes para transiciones críticas, y reglas de nomenclatura/Type Catalogs para garantizar consistencia. El objetivo es coordinación, no “escultura”: precisión verificable y constructibilidad.
MATERIALIDAD
El concreto ocre y la huella de formaleta de madera funcionan como narrativa material; en BIM se formalizan como datos. Se asignan parámetros de material, acabados y fases para habilitar cómputos, control de especificación y representación por vista (graphic overrides) sin depender de texto sobrepuesto. La intención es que la lectura sea limpia: el modelo “habla” con capas de información y un set de estilos consistente, incluso cuando el portafolio muestre láminas sin cotas.
ESTRATEGIA AMBIENTAL
El edificio incorpora ventilación constante con control pasivo mediante un ducto longitudinal en el muro central, extendiendo soluciones a aulas y oficinas. Para BIM, esto exige modelar y coordinar un “spine” técnico: vacíos, reservas, recorridos y registros. La lógica ambiental se verifica con secciones de coordinación, control de alturas libres y compatibilidad con estructura y arquitectura, evitando interferencias recurrentes en cambios de pendiente y encuentros con envolvente.
Implementación BIM (workflow, coordinación y entregables)
Alcance: modelo arquitectónico + estructural de coordinación, con set de vistas por paquete y matrices de control (niveles, rejillas, categorías críticas). Se aplican convenciones de nombres, parámetros compartidos mínimos y un flujo de QA/QC basado en revisiones por hitos: limpieza de warnings, consistencia de tipos, control de uniones, y validación de exportación (IFC/DWG) según el objetivo del ejercicio. Entregables: plantas, cortes, elevaciones y detalles clave derivados del modelo.
Conclusión
Este proyecto se presenta como demostración de criterio BIM: convertir una arquitectura compleja en un sistema digital estable, auditable y coordinable. La intención es evidenciar dominio de geometrías no estándar, control paramétrico, lectura técnica y coordinación disciplinar. Las láminas del portafolio priorizan claridad visual; por eso se omiten cotas y etiquetas en algunas vistas: la información existe en el modelo y puede activarse por paquete según el entregable requerido.

También te puede gusta

Back to Top